Appleton Cross
Local Centre - Vision for a Thriving Community Hub
Medical Centre
High-quality healthcare at the heart of Appleton Cross local centre
Providing increased access to high-quality local healthcare was one of the top priorities raised during our first consultation. Working closely with local NHS partners and healthcare providers we will not only meet the needs of local people but also the wider local area. The lead developers of the Medical Centre will be United Healthcare Developments a highly-experienced developer specialising in the delivery of outstanding and innovative medical centres.
Medical Centre

Our Aim
- To significantly increase the capacity for convenient, community-based GP services in Appleton Cross, Stretton, Grappenhall and the wider South Warrington area- in line with the requirements with local NHS partners.
- To offer flexible space that can accommodate a wide range of health and wellbeing services, now and in the future.
- Provide an outstanding sustainable building which includes expansion space, “Fit for the Future”, to meet the evolving delivery of the NHS 10 Year Health Plan published earlier this year. For example, ensuring the health service is neighbourhood focused, providing continuous, accessible and integrated healthcare.
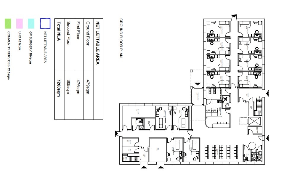
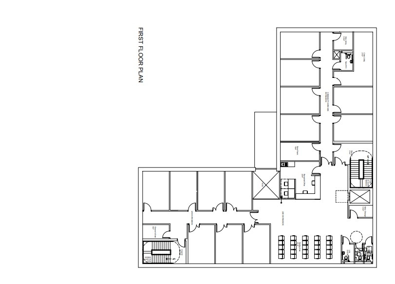
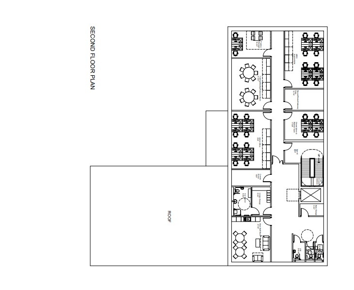
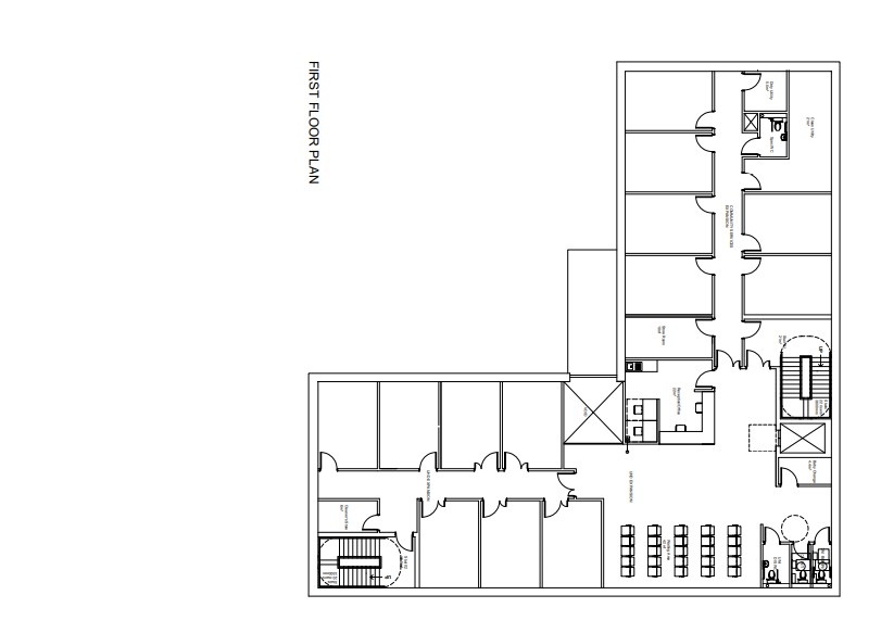
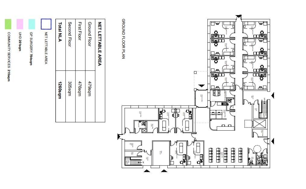
Medical Centre Floor Plans


Supporting Health and Wellbeing
The new Medical Centre provides the opportunity and flexibility to bring together a wider range of services to support everyday health and long-term wellbeing, including:
- GP and nurse appointments
- Health checks, vaccinations, and clinics for long-term conditions
- Space for visiting specialists and community health services
- Flexible rooms for wellbeing and educational sessions
Potential Facilities Could Include
- GP consultation and treatment rooms
- Nurse and specialist clinics (e.g. physiotherapy, health checks, chronic condition management)
- Minor treatment and diagnostic areas
- Community health and wellbeing services
- Accessible parking and drop-off area
Our Commitment
We are working with local NHS partners and healthcare providers to ensure the new Medical Centre responds directly to local demand and supports preventative care and wellbeing – now and in the future. A facility that will sit alongside the new community and retail facilities, helping to create a vibrant local centre that serves everyone in Appleton Cross and south Warrington area.

We’d Like Your Views
We welcome your feedback on the proposals. Please share your thoughts by completing the feedback form available on this webpage. Or email us at InfoAppletoncross@step-places.com

Feedback Form
1. Who are Step Places and what is Homes England involvement at Appleton Cross?
Homes England is the existing land owner of Appleton Cross Local Centre. Following a comprehensive procurement exercise, in February 2025, Homes England appointed First Step Group (trading as Step Places) alongside United Healthcare Developments (“UHD”) to be their developer partner. This was to ensure the Local Centre could be delivered as quickly as possible in partnership with an experienced developer.
The site will be leased to the developer for the construction period. Homes England will retain ownership of the site for the foreseeable future and will also be involved throughout the planning and delivery process..
2. What is being proposed at Appleton Cross Local Centre?
Appleton Cross Local Centre will be a community-focused Local Centre comprising of a medical centre, housing, and other complementary community and commercial uses. The Local Centre will meet the needs of local residents and create a vibrant, attractive and functional environment.
3. What are the anticipated timelines associated with the development?
Step Places, UHD and Homes England are currently reviewing the feedback received during the public engagement in November 2025. The next pre-application meeting with WBC is expected in early 2026 and subject to the outcome of this feedback, a full planning application is expected to be submitted in Spring 2026.
Following planning consent, the earliest start on site date is anticipated as Summer 2026.
4. How does the Local Centre fit into the broader South East Warrington Urban Extension?
The Appleton Cross Local Centre is of strategic importance to Homes England, being surrounded by Homes England’s wider landholdings, allocated within the Warrington Local Plan as the South East Warrington Urban Extension (“SEWUE”).
Step Places, UHD and Homes England are committed to the delivery of social infrastructure in the area. Whilst the Local Centre does not form part of the SEWUE allocation boundary, it is geographically located in the middle of it, therefore will play a key role in providing services and infrastructure to the wider South East Warrington area.
To note, the delivery of Appleton Cross Local Centre will progress ahead of the plans for the SEWUE. As required by planning policy, the SEWUE will also be required to provide further services and infrastructure including further Local Centres, in addition to that being provided at Appleton Cross.
For further information on the SEWUE and the emerging proposals for locations of new homes and supporting infrastructure, including Local Centres, please visit www.southeastwarrington.co.uk
5. Will a planning application be submitted for the Local Centre? What uses will be included?
A full planning application will be submitted to Warrington Borough Council for a mixed-use development to create a new Local Centre. The planning submission is expected to comprise of housing, a medical centre, and other planning Use Class E / F uses.
Use Class E / F uses could include (but not limited to) retail, community facilities, places of worship, vets, dentists, pharmacy, hairdressers and café.
As it is full planning permission that is being sought, no further Reserved Matters Planning Applications will be required for the Local Centre following its approval.
It is also worth noting that outline planning permission was previously granted on the site, in 2018, for 370 homes and a new local centre, comprising of a medical centre, retail floor-space and community facilities. While the residential element has been completed, this outline planning permission has now expired which is why a new planning application for the Local Centre is required to be submitted.
6. Once planning permission is granted, how is Step Places proposing to mitigate any potential impacts on existing residents during the building of the Local Centre?
Whilst Step Places recognise that the development of the Local Centre could bring temporary disruption to those living nearby, we are committed in taking proactive steps to minimise and mitigate these impacts.
We are committed to:
· Working with residents during the consultation phase to ensure we gather feedback and concerns at the earliest stage; and have them addressed (where possible) during the planning process.
· Preparing a Construction Environmental Management Plan (“CEMP”) which will be submitted as part of the planning application to Warrington Borough Council. This CEMP will include measures such as location of any site compounds, methods for mitigation of noise and vibration, proposed construction access routes and ensuring minimal disruption to nearby residents.
· Progressing the development in phases, which will allow for better coordination and reduced disruption to the local area.
· Ongoing dialogue with residents in the local area including updates, milestones, and opportunities for feedback being regularly shared via the project website
(www.step-places.com/project/appleton-cross), ensuring residents are kept informed throughout the pre and build period.
Also, through recent community engagement activities, we have listened carefully to residents’ concerns about the potential use of Braeburn Drive for access and particularly in relation to construction vehicle access. We are currently finalising our infrastructure plans in consultation with Warrington Borough Council. One potential option under review is a temporary construction-only access from the existing Blackcap Road / Dipping Brook Ave roundabout, which would avoid the need to route construction traffic via Braeburn Drive. We will share further details when we are able to do so.
1. What will be the size of the medical centre and how many patients will it cater for?
The NHS brief is to construct the new medical centre to cater for existing patients, aswell as to meet both demand from new local patients and has further flexibility and expansion space to accommodate future growth associated with the SEWUE proposals. In total, the new facility will have capacity to cater for nearly 19,000 patients.
2. What services will be provided from this centre?
Our aim is to provide flexible space that can accommodate a wide range of health and wellbeing services, now and in the future. The medical centre’s principal function will be for primary care and GP provision offering GP and nurse appointments. Other services could include:
· Health checks, vaccinations, and clinics for long-term conditions
· Space for visiting specialists and community health services
We will work closely with the NHS Integrated Care Board (ICB) on the future provision of services from this location.
3. Will there be a pharmacy?
We hope to attract a pharmacy to the Local Centre but cannot make a commitment at this stage.
4. Will the new Medical Centre accomodate all the residents living in the new houses?
The new medical centre is designed to meet both current demand from local patients and has flexibility and expansion space to accommodate future growth associated with the SEWUE proposals.
5. Will there be diagnostics/scanning facilities?
It is too early to advise what additional services and facilities might be offered at the medical centre. However, UHD are working collaboratively with the ICB to understand existing requirements.
6. What GPs are relocating to the new health centre at Appleton Cross
The NHS Integrated Care Board (“ICB”) have confirmed that Stretton Medical Centre(located at 5 Hatton Lane, Warrington, WA4 4NE) and Stretton Branch Surgery (located at 45 Dudlows Green Road, Appleton, Warrington, WA4 5EQ) will be relocating into a new health centre at Appleton Cross Local Centre once it has been built. The ICB has advised that these existing premises are no longer fit for purpose, with no scope for improvement or expansion to meet the needs of the rising number of patients in the area.
The ICB will continue to review the two sites (Stretton Medical Centre and Stretton Branch Surgery) having regard to workforce, affordability, capacity, flexibility and suitability for the emerging integrated primary care models.
1. Will Appleton Cross provide with community facilities?
The proposals for the Local Centre currently include a community centre. Whilst the detail of this community centre is still to be developed, it is currently proposed to include flexible spaces that support local groups, activities and events such as clubs, classes and local religious groups.
2. Who will manage the Community Centre?
Currently, no decisions have been made on the management of the proposed Community Centre. If any organisation or community group is interested, they should express their interest with Step Places or via feedback forms provided.
We will work closely with the NHS Integrated Care Board (ICB) on the future provision of services from this location.
3. What activities are planned to be delivered from the Centre?
At this stage, there have been no final decisions on what activities could be delivered from the Community Centre as the development is only at the early stages. If any community group wishes to run activities from the Community Centre, they should also express their interest with Step Places or via feedback forms provided.
1. Have there been any discussions with any retailers and other commercial occupiers
There have been ongoing discussions with a range of occupiers who expressed an interest in Appleton Cross Local Centre. This includes (but not limited to)convenience stores, vets, creche / nursery and dentists.
Due to commercial sensitivities, Step Places cannot disclose the identity of potential occupiers and to date, no formal agreement is in place with any of these occupiers. However, Step Places is committed to accommodating the needs of local residents therefore any uses proposed as part of the planning application will be suitable for the Local Centre’s role in providing day today services and amenities and also reflect the scale and character of the local area.
1. Can you tell us a bit more about the proposed residential properties?
The proposals currently include a small amount of high-quality and sustainable new family homes. Further details will be provided in due course.
2. What will be the price of these new homes? Will there be social housing?
No decisions have been made about the price of the properties being built as the development is at early stages.
1. How will the Local Centre be accessed by vehicles?
The original outline planning permission for Appleton Cross set the precedent for the Local Centre uses and confirmed its future access arrangements, with two spurs off Braeburn Drive. With the delivery of Orchard Meadows by Barratt David Wilson, the accesses into the Local Centre site are now constructed and are available to use.
The Local Centre site sits adjacent to the corridor for a future Link Road proposed as part of the wider South East Warrington Urban Extension, connecting Appleton Cross to Grappenhall Heys. The exact alignment and design of this Link Road and potential timescales for it to be built and operational have yet to be determined. To ensure that the Local Centre could benefit from connectivity to the future Link Road once constructed, the proposed Local Centre layout appropriately safeguards land to facilitate such a connection.
Through recent community engagement activities, we have listened carefully to residents’ concerns about the potential use of Braeburn Drive for access and particularly in relation to construction vehicle access. We are currently finalising our infrastructure plans in consultation with Warrington Borough Council. One potential option under review is a temporary construction-only access from the existing Blackcap Road / Dipping Brook Ave round about, which would avoid the need to route construction traffic via Braeburn Drive. We will share further details when we are able to do so.
2. What cycle and pedestrian access is being proposed?
The proposals include improved cycle and pedestrian access onto Green Lane and to the open spaces and play areas to the north.
3. Will there be sufficient car parking at the Local Centre?
Sufficient car parking will be provided to support the variety of uses at the Local Centre;
· Commercial and retail facilities-Car parking is currently proposed centrally within the development to mitigate parking along existing residential streets and to accommodate visitors on short-stay visits only.
· Residential – car parking is provided within driveways and visitor spaces will be provided for residents only.
· Medical centre- there will be designated carparking spaces for staff only and further car parking will be provided adjacent to the medical centre.
1. What green spaces and landscaping are being proposed as part of the Local Centre?
Appleton Cross Local Centre will include a variety of green spaces to benefit visitors and existing and future residents. The proposals currently include a green link through the development to connect the existing residents of Orchard Meadows with Green Lane (to the east) and to also increase accessibility to the existing play areas which have been delivered by Barratt David Wilson to the north. The proposals also include a community square and areas of open space to the south.
2. How will any green space be maintained?
The proposed green space and community square would be maintained through funding from the building development service charge, a fee paid by residents and businesses to cover the costs of maintaining and managing the shared areas of abuilding or estate.
As part of the planning submission, we will agree a 30 year landscape management plan with the local authority.
3. How do the proposals promote walking and cycling?
The proposals include sufficient levels of cycle parking in accordance with policy requirements and also strengthen connections from Orchard Meadows to the existing traffic-free Green Lane route that runs along the eastern boundary of the site. Walking routes will be promoted throughout the Local Centre encouraging residents to access the Local Centre by foot and bicycle.
4. What measures will be taken to mitigate any potential Anti Social Behaviour e.g. young people hanging around in the evening? Will there be any CCTV?
Step Places will explore the installation of CCTV and other security measures in order to mitigate the potential for any Anti social behaviour. The Designing Out Crime measures could include lighting, open public spaces, and well-maintained environments to signal active ownership and deter vandalism and ASB.





